Клапан дымоудаления ДМУ-МС с электромагнитным приводом многостворчатый
Клапан дымоудаления предназначен для открывания проемов вытяжных систем аварийной противодымной вентиляции. Клапан устанавливается в проемах стен, перекрытий, подвесных потолков, а также в торце воздуховодов.
Клапан ДМУ МС (далее клапан) используется в качестве клапана дымоудаления с нормально закрытыми заслонками.
Клапан предназначен для открывания проемов вытяжных систем аварийной противодымной вентиляции.
Применение клапана осуществляется в соответствии с требованиями СП 60.13330.2012, CП 7.13130.2013, ГОСТ Р 53301-2013 и действующими территориальными строительными нормами.
Вид климатического исполнения и категория размещения - УЗ по ГОСТ 15150-69.
Клапан не подлежит установке в помещениях категорий А и Б по взрывопожароопасности, в системах вентиляции и местах отсоса взрывопожароопасных и агрессивных сред, а также в системах, не подвергающихся очистке от горючих отложений.
Пределы огнестойкости клапана ДМУ МС – E90.
Режим работы клапана ДМУ МС – нормально закрытый (НЗ).
Клапаны ДМУ МС изготавливаются из оцинкованной стали, стенового типа с внутренним расположением привода.
Способы управления заслонкой клапана ДМУ МС:
|
Тип привода |
Принцип срабатывания привода |
Механизм перевода заслонки |
Способ перевода заслонки |
||
|
В рабочее положение |
В исходное положение |
Из рабочего положения в исходное (многократное использование) |
Из исходного положения в рабочее |
||
|
ЭМ |
Подача напряжения на электромагнит* |
возвратная пружина |
- |
вручную |
автоматический, по сигналам пожарной автоматики; дистанционный с пульта управления; от кнопки/тумблера в месте установки клапана |
* Режим работы кратковременный, не более 1 минуты во включенном состоянии.
Примечание:
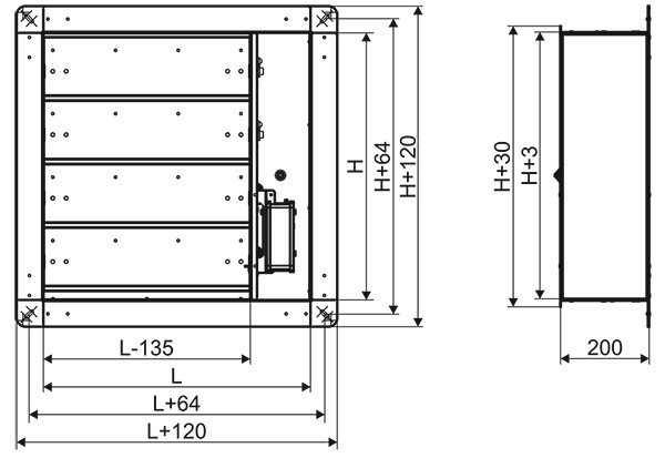
Электропривод устанавливается только по высоте клапана (H).
Габаритные и присоединительные размеры (мм)

Типоразмерный ряд и значение площади живого сечения клапанов ДМУ МС стенового исполнения, м2
Примечание: Клапаны, размеры которых превышают указанные в таблице, конструируются индивидуально.
Характеристики приводов клапанов ДМУ МС
|
Характеристика |
Электромагнитный |
|
|
Время поворота, с, не более |
2 |
|
|
Крутящий момент, Нм |
- |
|
|
Напряжение электропитания привода, В |
24/220 |
|
|
Потребляемая мощность, Вт |
во время вращения |
70 |
|
в состоянии покоя |
- |
|
|
Рабочая температура, °С |
-30...+50 |
|
|
Степень защиты |
IP54 |
|
|
Вес, кг |
1,5 |
|
Электрические схемы подключения клапанов ДМУ МС

Не представленные в наличии модели доступны к поставке под заказ
Оповестить о поступлении
Всю необходимую информацию также можно получить по телефону «горячей линии»
+ 7 800 200 93 96или по телефону
+7 800 505 08 67 получить консультацию
